headerProperties images

Site-Specific Drawings

 

Complex, Detailed Drawings in Revit

Belimed Blueprint provides site-specific drawings for all projects involving multiple pieces of equipment. These drawings are completed in Autodesk Revit Architectural Software to provide 3D capabilities and seamless integration into overall building plan project files.

 

A Critical Component to Ensuring Project Success

A major renovation or new construction project involves numerous participants (architects, engineers, contractors, etc.). It is important that all parties fully comprehend the scope of work involved to provide properly configured infrastructure and space to ensure a successful install and continuous operation of the Belimed equipment. The Belimed site-specific installation drawings enable all project members to plan/price/schedule accordingly to prevent "surprises" and scope creep in the project. 

#Equipment Technical

Equipment Technical Specifications (Page 2 of Download)

CSSD equipment heavily relies on the utilities/infrastructure that are available at the facility. The most critical categories are quality and quantity of utilities. The Belimed drawing allows full visibility to utility requirements and connection sizes to allow for proper utility sizing.

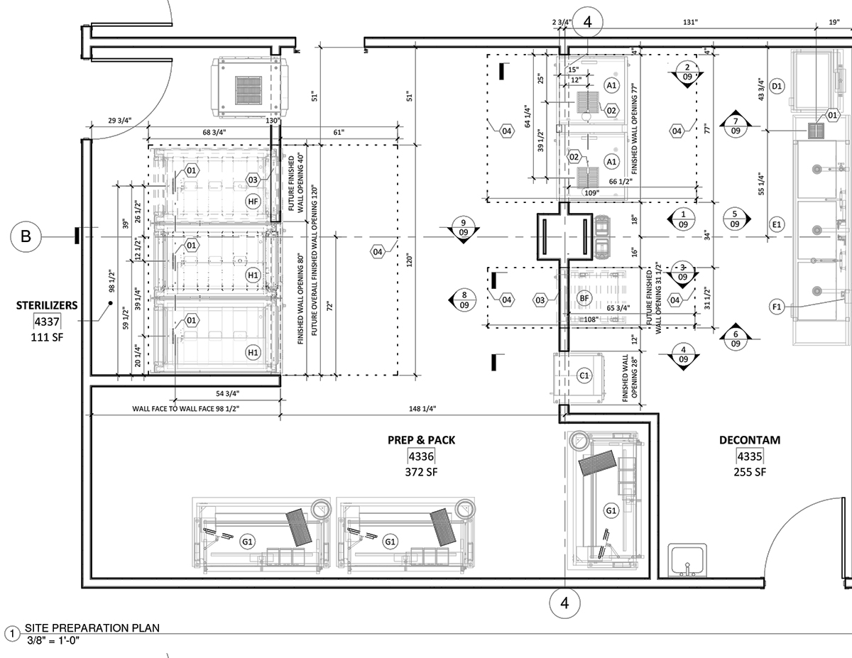
#Demolition and Site Preparation

Demolition and Site Preparation Plans (Page 6 of Download)

Plans for demolition (if renovation project) and site preparation are key to get the CSSD ready for the Belimed equipment to be installed. From finished wall opening dimensions to floor drain locations, these plans cover it all.

#Mechanical, Electrical

Mechanical, Electrical, & Plumbing (MEP) Plans (Page 6-7 of Download)

Rough-in locations for all utilities are dimensioned to ensure proper placement to connect to the Belimed equipment.

#Section and Elevation

Section and Elevation Views of Equipment/Utilities (Page 9-10 of Download)

These views allow for the entire design and construction team to ensure their or no discrepancies or interferences between the sterile workflow and building facilities.